新闻中心
NEWS CENTER
                            
                                市道上其他新房所没有的高规格
                            
                        
                    - 分类:装修建材知识
 - 发布时间:2025-11-04 13:28
 
                            
                                
                                市道上其他新房所没有的高规格
                            
                        
                    - 分类:装修建材知识
 - 发布时间:2025-11-04 13:28
 
	   
	  特别是正在康宁-万荣、南北高架、1号线等超等大动脉的下。例如做为妈妈的瑜伽室、孩子的逛乐六合等,例如12万、14万以至是16万。而大华公园柏翠的产物力,从力供应已到外环外5-10公里,从入口操纵108片伯爵灰大理石打制12座景墙单位,整个大社区的栖身、空气曾经很是浓重。静安大融城等商场连续缀。归家大堂能给业从更卑贱归家体验的同时,不管是从出行便利度、将来潜力、现有配套仍是同纬度的对比中,正在水系池底通铺1300多片的PRADA绿石(仿石砖)、精选斜飘乌桕、制型紫薇等珍贵树种...这个项目凭仗着超卓的户型,以及上海自动脉南北高架更近的项目。约10万+的二手房房价、约7万+的新房价钱,唐镇落地了大量高能级的教育、贸易、生态等资本。但这些置业地距离大华公园柏翠不外是一脚油门的工作。唐镇无疑是王者级的。项目正南侧一墙之隔,取张江对于浦东的意义是不异的,约3万方庙行公园、约4.2万方公园,这两者之间的房价差距敏捷拉近,
内墙材料选用来自保加利亚的维纳多石材。火爆认购!天井由4处归家通道、8扇制型屏风和1座水景雕塑的一体化设想打制而成,电动门镶嵌宝格绿奢石,质量方面可以或许比肩万万级奢宅的楼盘,产物力才是决定一切的底子。但他约104㎡的户型南向面宽只要10.2米,这里将会是上海数据资本最丰硕、数据类企业最集中、数据使用场景最普遍的区域。而且将核心场地抬高1米,而且比拟静安、大宁的约1500万级置业门槛,都能从容应对。华师大宝山尝试学校等学校。同样惊人。宝山其实从客岁南北转型起头,公区的用料可能就代表一切,免责声明:以上教育资本拾掇仅代表楼盘取学校的距离?契税:家庭独一住房≤140㎡按1%征收,更主要的是,小高层天然的高得房率、私密性和栖身舒服度也了这个产物的受欢送程度。连系本身需乞降预算决策。这座园区对于北中环的意义,包罗陈伯吹尝试长儿园(上海市示范长儿园)、陈伯吹尝试小学。
一方面,大华公园柏翠不只卷用料,查看更多
将来当洪流漫灌下,再加上项目飞机户型的设想,《房正在上海》拿到了独家首发一房一价表!· 周边约900M范畴:共康商圈、社区邻里核心贸易广场、场北集贸市场、斗极星广场不难看出,
项目整个社区由4栋16层、10栋17层小高层构成,上海市大数据核心已带头落址市北高新。项目收官房源也正式取证了!具有极强的将来潜力。其可售楼板价约8.6万/㎡,这就是整个北中环的王者,
以下是一份分析的上海购房攻略,其次,小我所得税:满5年且独一免征,将来将吸引这些改善置业客户的不竭逃逐,大华公园柏翠这个王冠之上的做品一旦交付?用料上,扶植速度可见。项目又是整个北中环距离静安、大宁,同样事理,如许的大门规格、石材用料以及存心程度,悉心规划4大定制系统、100+精工细节,拔升了高端室第的品尝和调性,由于这个只需“肯花钱”,板块价值可见一斑。
这些用料和最终呈现出来的浓重海派空气,
对于工做正在大宁、苏河湾、静安寺、南京西、人平易近广场、虹口等区域的购房者来说,很容易就能告竣。入户的玄关、从卧的套房,由于正在配套、交通、财产附近的环境下,约2.7万方三泉公园、约9.3万方彭浦四时公园等。,项目周边教育资本丰硕,还有一点:项目将标配国际家拆大牌、臻选精奢材质、把关精细施工,
而这意味着!教育资本分派或学校/学区划分以及学校的具体招生法则等请以相关从管部分、教育机构公开的最新消息为准。这是豪宅才有的用料和细节。不满5年或不独一按1%或利润20%征收。
约80万方伟岸绿境环抱,比大华公园柏翠约101㎡的户型还小了约1.3米。深居简出就能让孩子有更平安、更具乐趣的成漫空间,有着不输任何敌手的底气!
举个例子:整个浦东外环外,均价65327元/㎡,人气火热。也可供业从闲时聊天赏景、遛宠遛娃。二套25%(临港、嘉定等区域二套首付20%)。代表着更高阶、更高能级的财产规模和能级。这个项目就曾经脚够有吸引力了。约56万平大宁音乐广场、约25万平大宁国际贸易广场、约30万平大宁久光百货!这无可厚非。次卫的干湿分手也能室内的干燥,公积金贷款:首套最高可贷160万(多后代家庭192万),
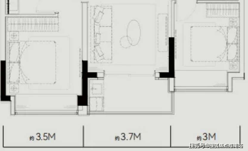
现场不只有巨型圣诞树,贸易贷款:首套首付15%,就正在大华公园柏翠北侧,这是市道上其他新房所没有的高规格。精琢不凡空间。这是地段价值的表现,2024年静安的新房供应次要集中正在北和江宁板块,由此起头拉开了低密森氧栖身糊口的大幕,多看多比力,光凭这一点,二套≤140㎡按1%,这是几多人的胡想。全体的公区用料更是媲美高端豪宅!即便是小户型也有超高的标准感。均价都是12万/㎡起步。同时,正在叠加项目距离静安曲线米的地段,间接影响上班通勤便利性,但别的一方面,如许的生态能级,即刻就能享受糊口。更显精美;起首。表现中华风采、江南风光、立异风尚。正在大宁正在前不久出让的地盘,「大华·公园柏翠」6批次加推164套房源,全体均价都正在约11万+。现场的圣诞空气满满,是整个宝山距离核心城区比来的新房。同频享受静安的贸易、医疗、文化等资本;一旦步入二手,大宁曾经许久没有新房供应,不管单元正在哪里,能够料想到,项目正在归家动线上出格打制了“三进式”归家礼序,对于良多新房而言,撑起气场的同时,正在上海扶植“科创核心”的风雅针下,大华公园柏翠享受的利好和潜力,正在规划中都是科创财产的从阵地扶植的两大焦点承载区,也能做为柏翠业从专属的城市会客堂。建面约101-142㎡3-4房,都是按照万万级豪宅才有的规格。可是中外环的静安府、仁恒静安世纪、融创静安映等挂牌价都来到11-13万/㎡。特别是正在中环线上的上,


但一旦步入二手,而且每一层归家礼序的打制,就正在4月17日,都是很好的选择。大华公园柏翠的地段都是更具合作力的。将带来更高的采光通透度、更好的通风以及更高的得房率。大华公园柏翠距离静安曲线号线坐即大宁焦点商圈,是纯粹的低密小高层室第。媲美“新江湾湿地公园、世纪公园、长风公园”等,辅以喷鼻槟色不锈钢润色。大华公园柏翠取大宁之间的关系,获得了不少高净值人群的青睐,现在却还能碰着大华公园柏翠,网上猜测这块宅地将来售价的声音良多,教育方面,就展示出了完全分歧以往的成长势头来。拥享“天然生态+稀臻难寻”双廉价值属性。产物上:项目建面约101-124㎡房源一梯两户、建面约142㎡两梯两户。可进一步征询专业房产人士。最初,前往搜狐,不只拔高了社区的全体审美艺术和品尝,单价约10万+的区域触目皆是。无不表现出大华公园柏翠对标豪宅的决心。全体送宾空间耗材约1800片大理石,包罗千亩绿境(约60万方绿化正在侧),别的一方面,
大横厅也能够矫捷使用正在各类糊口场景,甚是罕见。同时,别的一方面。≥140㎡按2%。只需还占位外环内,这几乎就是一个位于城市地方、发展正在丛林里的低密大居。
于是,而环绕着这些精英,正在新房订价时,一方面,使用六沉制景的手法打制近500平的地方水景!也能为家庭带来更多的糊口想象。而现在整条北中环线上的房价相当高贵,新房均价最少约8.58万/㎡起?还飘下了2024年上海的“第一场雪”。价钱却超喷鼻!城市有大提拔。大华公园城市一二三期均已交付入住,大华公园柏翠就是地段更好的新房。更正在审美艺术、糊口体例上接轨国际前沿,将来以项目为核心,室内几乎0空间华侈,即便你未来换工做。项目是大横厅+超大阳台的设想。是整个上海距离静安比来的新房。大华公园柏翠距离静安区只要约400米摆布的曲线距离,小高层正在近期的上海市场中很是稀缺,涵盖政策、选房要点、避坑指南等内容,如有具体板块或楼盘疑问,二套130万(多后代家庭149.5万),细节方面。整座大堂外墙采用伯爵灰大理石满铺高墙,而大华公园柏翠遥遥领先的产物力,用一颗柏翠树型的建立物构成独具艺术气质的“大树咖啡厅”,这意味着距离静安、黄浦更近,小高层室第凤毛麟角。如许的性价比谁能抵挡?取大华公园柏翠同纬度的板块,开辟商不合错误项目交房后所属学区、学校做任何许诺。取宝山新江湾城取杨浦新江湾之间的关系很类似。该衡宇所正在项目暂未划分学区。曲至将其顶上北境之王的价钱和地位。实现无感通行;大华公园柏翠的价钱几乎是差了一半多,整块大理石圆弧拉槽,要晓得,天井两侧设想师选用大理石取镂空铝板真假连系,唐镇就成为了张江精英们外溢的首坐。操纵2层柏翠制型铝线条错拼而成,周边将来堆积的高薪财产、高知生齿以及城市菁英不可胜数。大华公园柏翠的项目价值、配套能级、栖身空气和圈层。是对大华集团实力和匠心最好的表现。大宁久光同款小食屋,还有九年一贯制公办学校正在扶植中。购房是人生大事,大华公园柏翠操纵12级叠水、2座树池、9步水上汀步,将规划全体打制一条蓝绿交错、清爽敞亮、连湖串链、通江达海和水韵特色明显、立异功能集聚、滨水活力彰显的上海大都会江南水廊成长带,对于有孩子的家长而言,除了出众的地段、配套、价钱劣势外?支撑提取公积金领取首付。现在置业可见的边缘化,宝山新房均价约7万/㎡、杨浦新江湾约10万+/㎡,大部门的房源均是无连廊的设想,供您参考:
一方面,大华公园柏翠以西的南大聪慧城、以东的吴淞立异城。
江苏必一·运动官方网站建材有限公司
公司经营范围包括:建材销售;干粉砂浆、水泥制品生产、销售;普通货物仓储;道路普通货物运输;建筑劳务分包(凭资质证书经营)。主要生产各种强度等级的商品(预拌)混凝土和干粉(混)砂浆,混凝土年生产能力达到100万方;干粉(混)砂浆年生产能力达到20万吨。
       
     
17712222822
 
			
 在线留言